Casa Hermosa

Hermosa Beach, California


Project Narrative

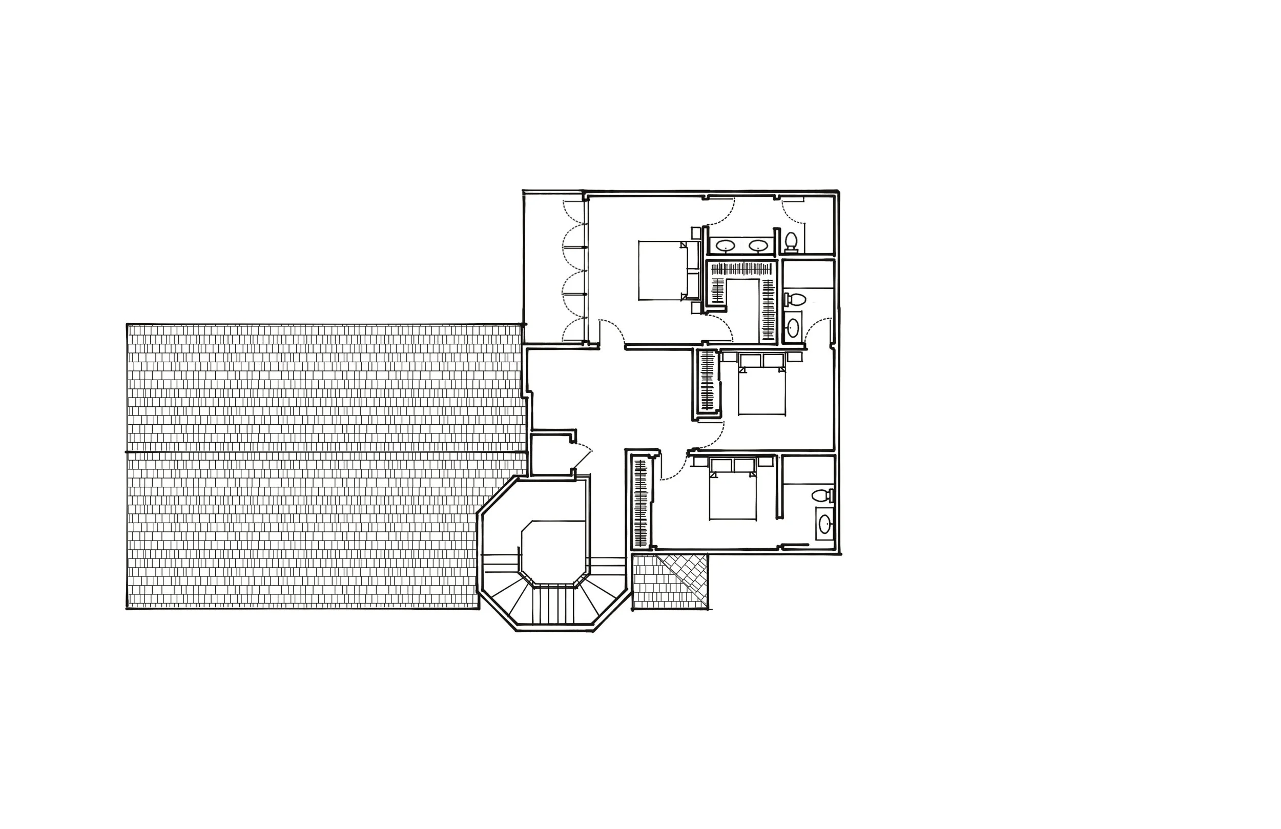
Located in the coastal neighborhood of Hermosa Beach, this residential remodel and expansion currently in development breathes new life into a hillside property by merging traditional Spanish Revival elements with a refined Modern Spanish aesthetic. The design preserves the home's historic soul while introducing contemporary influences, such as streamlined silhouettes and enhanced natural light. Working within the parameters of Southern California coastal codes and specific budgetary requirements, the architectural vision focuses on a sophisticated refresh that elevates the existing structure into a cohesive, high-design retreat.

The project’s progress relies on a collaborative framework between the architect, the clients, and a team of specialized design consultants. This partnership ensures that every structural expansion and aesthetic update aligns with the overarching goal of functional luxury and client budget. By maintaining a transparent client-architect dialogue, the design successfully navigates complex site constraints and technical requirements, ensuring the final result is as technically sound as it is visually compelling.

Role

Architect

Status

In Progress - Schematic Design

Previous
Previous

Palisades Rebuild

Next
Next

Lake Haus